Ключевая функция стабильной работы данной машины заключается в её роли грунтососа, спроектированного для обеспечения высокой устойчивости в условиях абразивных и твердых составов в потоковой зоне.
Использование земснаряда и принцип его работы
Качество и объем работ, связанные с добычей или поиском природных ресурсов, напрямую зависят от применения специализированной техники. В процессе выполнения гидротехнических мероприятий часто используется землесосный снаряд, подробно описанный в разделе «Наши проекты». Его высокая производительность позволяет функционировать в суровых условиях, присущих водоёмам, рекам, не вызывая при этом беспокойства у оператора относительно срока службы данного устройства.
Землесосный снаряд представляет собой устройство с дизельным или электрическим приводом, которое функционирует в нижних слоях воды, близко к дну. Он исполняет роль своеобразного «пылесоса», извлекающего грунт и камни со дна водоёма. При этом конструкция снаряда позволяет легко изменять геолокацию и транспортировать смесь воды и земли с помощью плавучего и магистрального пульпопровода к месту сортировки и упаковки. Конструкция данного оборудования и его дополнительных элементов разработана на базе железного судна.
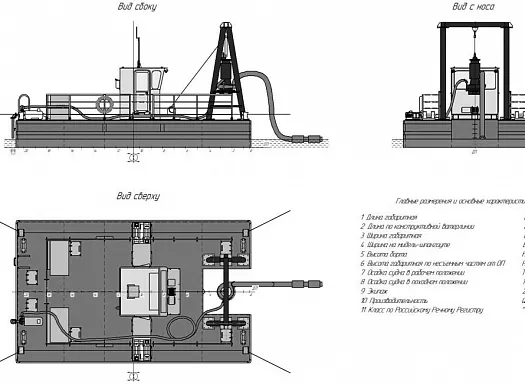
Проект 1221 ‒ несамоходный электрический землесосный снаряд с погружным насосом. Основное предназначение данного судна заключается в добыче песка в закрытых водоёмах и карьеры, а его дальнейшая транспортировка осуществляется на берег. Класс судна по Российскому Речному Регистру – + Л.
подробнее

Земснаряд для очистки водоёма применяется благодаря продуманной конструкции устройства в следующих ситуациях:
1. Прокладывание траншей перед установкой трубопроводных систем с последующей их засыпкой;
2. Исключение ила и грязи со дна рек и озёр;
3. Углубление дна водоёмов;
4. Участие в создании плотин, пляжей, дамб, дорог и мест под будущие застройки;
5. Добыча сапропелей, золота, камня и песка;
6. Очищение отстойников, используемых на сельскохозяйственных, пищевых и металлургических предприятиях;
7. Устранение наводнений, включая откачку значительных количеств воды из затопленной местности;
8. Выполнение работ по установке морских и речных гидросооружений.
Широкий ассортимент возможностей данного оборудования дает возможность его внедрения в таких областях, как:
1. Угольная промышленность;
2. Металлургия;
3. Горнодобывающая отрасль;
4. Коксохимия;
5. Добыча золота;
6. Строительство;
7. Сельское хозяйство.
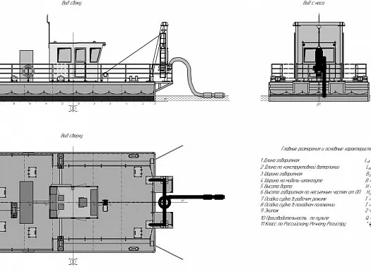
Проект 1230 ‒ дизель-электрический земснаряд с погружным насосом. Архитектурно-конструктивный тип данного судна — несамоходный дизель-электрический земснаряд с корпусом, состоящим из двух понтонов. Оно оснащено рубкой, папильонажным устройством, а также механизмом для подъема и погружения погружного насоса, и леерным ограждением. Класс судна по Российскому Речному Регистру – + Л.
подробнее

Из чего же состоит землесосный снаряд?
Данное гидротехническое оборудование состоит из различных элементов:
1. Базовые узлы (грунтозаборное устройство, земельный насос, напорный трубопровод, всасывающая труба, механизм перемещения оборудования);
2. Дополнительные устройства (подъемный и спускающий механизм, прикладной насос для водоподачи, электроэнергетическая установка, соединительные элементы дискового снаряда);
3. Система обеспечения безопасности и работоспособности (управляющий режим, контроль измерений, системы обогрева, вентиляции, противопожарного оснащения, связи, освещения и радиооповещения на случай экстренных ситуаций).
В зависимости от спецификаций производителя грунтосос определяет своë непрерывное производительное давление, и оно должно быть оснащено высокоустойчивыми элементами, способными справляться с абразивами. Для продления срока службы грунтосос устанавливается в трюме, что помогает избежать кавитации. Перед закреплением земснаряда на дне реки проводится тщательный расчет скорости удаления жидкости и тяжелых компонентов через трубопроводную систему. После заполнения трубопровода водой, он фиксируется в необходимом месте, и затем запускается редуктор вместе с мотором.
Следующий этап заключается в откачке воздуха из всасывающего устройства. Итогом этого процесса становится мощное закачивание земли, камней и воды в насос. Извлеченные ископаемые из дна водоёма загружаются на баржу и вывозятся на берег. Скорость выполнения работ также зависит от свайного хода или работы лебедок. Вся система управляется с помощью пульта, который располагается в рубке багермейстера (от старта до подключения мелких лампочек).
Что такое земснаряд
Землесосный снаряд — это специализированное плавучее средство, предназначенное для перекачивания пульпы (смеси воды и грунта) с помощью мощного насоса через трубы в трюм или на берег.
Судно обладает всем необходимым оборудованием для выполнения следующих задач:
- Очищение водоёмов от илистых отложений, шлаков и песка;
- Углубление дна водоёмов;
- Очистка септиков, используемых в сельском хозяйстве и на промышленных предприятиях;
- Устройство насыпей для различных целей, включая пляжи, дороги и площади;
- Разработка и добыча песчано-гравийных смесей, драгоценных металлов, сапропеля;
- Производство шлако- и золонакопителей для промышленных объектов;
- Создание траншей для трубопроводов или подъем их с последующей засыпкой.
Также данная техника может быть использована при возведении портов на реках и морях, строительстве дамб и других важных гидротехнических объектов, устранении последствий паводков и разлива водоёмов, а также в процессе укрепления береговой линии.
Устройство земснаряда
Гидротехническое оборудование можно классифицировать по выполняемым функциям и структурным особенностям.
Составляющие землесосного снаряда, предназначенного для очистки водоёмов, включают:
- Основные агрегаты: грунтозаборное устройство, механизмы перемещения, грунтосос, всасывающий и напорный трубопроводы;
- Вспомогательные устройства: корпус судна, механизмы подъема и опускания, источники энергии, дополнительные насосы для подачи чистой воды;
- Устройства, обеспечивающие эффективность и защиту: контрольно-измерительная аппаратура, системы управления, освещения, оповещения и связи, а также устройства вентиляции, отопления и противопожарной безопасности.
Детальный чертеж конструкции земснаряда может быть рассмотрен ниже:

Какие работы выполняются земснарядами

Применение современных землесосных снарядов дает возможность реализовывать широкий спектр гидротехнических работ:
- Очистка декоративных прудов, озёр, каналов, лодочных доков и других водоёмов от ила, донных отложений и растительности.
- Очистка прудов-накопителей, отстойников и септиков промышленных предприятий.
- Дноуглубительные работы в фарватерах рек и углубление подходов к причалам.
- Восстановление речного русла, создание искусственных озёр и прудов.
- Гидромеханизация для создания мелиоративных каналов, судоходных каналов и портовых акваторий.
- Оборудование насыпей, аква-намыв песчаных пляжей.
- Строительство дамб, плотин и других гидротехнических сооружений, создание искусственных островов.
- Разработка и создание подводных траншей для укладки трубопроводов и кабелей.
- Добыча песчано-гравийных смесей и песка, включая речной песок.
- Устранение последствий паводков, ведение работы по откачиванию воды и удалению грязи из затопленных объектов, укрепление береговой линии, возведение защитных гидросооружений.
- Строительство шламонакопителей для горнодобывающей отрасли и золошлаковых хранилищ на теплоэлектростанциях.
Благодаря своим относительным компактным размерам и высокой производительности, земснаряды могут эффективно работать даже в ограниченных пространствах небольших водоёмов.
Классификация землесосов

Землесосные агрегаты различаются по способу транспортировки грунта:
Грунт транспортируется через пульпопровод на плаву.
Эти устройства работают как при добыче песка, так и при создании ПГС (песчано-гравийной смеси) путём гидронамыва, а также в устьях рек.
Намываемый грунт помещается в трюм и впоследствии доставляется на берег.
Намываемая масса может быть перевезена на берег с помощью шаланд, т.е. специализированных судов, предназначенных для транспортировки грунта.
Грунт может перемещаться на берег или на борт грузового судна через длинный лоток.
По способу перемещения по рабочему участку земснаряды делятся на следующие категории:
Перемещение может происходить за счёт якорей, установленных на борту.
Существуют агрегаты, которые передвигаются благодаря двигательным установкам.
Недалеко от берега средство может перемещаться с использованием свай.
Для перемещения могут использоваться как сваи, так и якоря.
Способ передвижения по рабочему участку также позволяет различать землесосы на два вида: траншейные и папильонажные. Землесос первого типа движется вдоль участка, формируя траншею по ходу работы, в то время как второй вид техники перемещается поперек участка.
Еще одним важным критерием является производительность по грунту. По этому критерию выделяют 5 типов земснарядов:
- Особо малые — до 50 м3/ч;
- Малые — от 50 до 200 м3/ч;
- Средние — от 200 до 500 м3/ч;
- Крупные — от 500 до 1000 м3/ч;
- Особо крупные — свыше 1000 м3/ч.
При выборе не следует ориентироваться исключительно на коэффициент полезного действия (КПД). Часто окажется более соблюдающей эффективность использование группы агрегатов с меньшими показателями производительности, чем одной технической единицы с максимальной мощностью.
Компания Водорой предлагает в аренду дизельные земснаряды марки 1600-45 Ц480Д и земснаряды Ахтарец 1600/45. Производительность по грунту составляет от 300 м3/час до 1400-2000 м3/час. Аренда доступна во всех регионах Российской Федерации и в странах СНГ.
Устройство и принцип функционирования земснаряда в значительной мере определяет его назначение, будь то очистка водоёмов или добыча песка.
Удлиненное рабочее оборудование
На земснаряд также может быть установлено удлиненное рабочее оборудование, называемое лонг рич. Для чего используется длинная стрела лонг рич? Этот тип стрелы предназначен для выполнения задач, требующих значительного вылета от носителя, при этом грузоподъемность оказывается на втором плане.

- Масса базовой машины, т: 20-25
- Вид работ: Земельные работы в труднодоступных местах, планировка откосов и выравнивание.
- Длина стрелы, м: 9,7

- Масса базовой машины, т: 20-22
- Вид работ: Земельные работы в труднодоступных местах, планировка откосов и выравнивание.
- Длина стрелы, м: 8,2
Длинная стрела является эффективным решением для дноуглубительных работ, а также формирования береговой линии водных сооружений. Она становится оптимальным вариантом для решения нестандартных задач, когда необходимо провести земельные работы в труднодоступных зонах.

Вывод
Землесосные снаряды представляют собой важный компонент в гидротехнических работах, связанных с добычей песка и других материалов из донных отложений водоёмов. Эти устройства также эффективно справляются с задачами по углублению водных путей.
Землесосные установки оснащены специальными насосами и плавучими пульпопроводами, позволяющими продуктивно выполнять очистку дна водоёма и осуществлять транспортировку грунта. Основные рабочие задачи землесосных снарядов включают в себя дноуглубительные работы, разработку грунтов и очистку водоёмов. В качестве источника энергии для землесосных установок чаще всего используются дизельные двигатели.
Кому и для чего может понадобиться земснаряд
В большинстве случаев аренда земснарядов необходима там, где возникает необходимость в добыче нерудных материалов, например, песка и опгс. Эти материалы извлекаются из русел водоёмов и других подводных карьеров. Процесс добычи песка и опсг называется гидронамывом.
Земснаряд также необходим для выполнения любых работ по дноуглублению. Применение технологии гидромеханизации обеспечивает одновременную транспортировку грунта и дноуглубительные работы, что позволяет существенно снизить затраты, которые могли бы оказаться значительными при использовании других методов.
Принцип действия земснаряда
Принцип работы земснаряда выглядит следующим образом: потоки воды, под значительным напором, вместе с песком из дна взмучиваются и быстро всасываются в трубу. Данная смесь затем транспортируется по трубам (пульпопроводу) в специальную область, известную как «карта намыва песка». На этой карте происходит сепарация песка и воды, которая возвращается обратно в водоём. В результате, песок остаётся на карте намыва, и с ним начинает работать бульдозер для выравнивания. Таким образом, весь процесс называется гидронамывом.
Какими особенностями обладают малогабаритные земснаряды и для чего их используют?
Основная отличительная характеристика малогабаритных земснарядов заключается в их небольшой осадке, которая обычно составляет от полуметра до одного метра. Благодаря этому малогабаритные модели могут выполнять работы в водоёмах с небольшой глубиной, в местах, куда сложно добраться с помощью другой техники. Часто эта услуга заказывается для подготовки удобного подхода тяжелого флота, который будет выполнять дноуглубительные работы.
Кроме того, малогабаритные земснаряды активно используют для очистки крупных водоёмов от песка, ила и нежелательного грунта. Эти машины также легко использовать на больших водоёмах.
Разновидности земснарядов
Если вам требуется арендовать земснаряд для конкретной работы, к вашим услугам предоставляются несколько типов земснарядов, каждый из которых обладает уникальными особенностями.
Землесосный. Это наиболее распространённый тип техники, который используется для очистки водоёмов от песка, ила и другого донного грунта. Благодаря применению высокопроизводительных насосов, которые способны эффективно всасывать воду и песок, работа по очистке водоёма проходит быстро и качественно.
Многочерпаковый. Данный тип земснаряда представляет собой старинный вид техники, напоминющий судно с цепью, где специальные ковши образуют замкнутую конструкцию. При вращении своего привода эти ковши поднимают воду, ил и песок со дна водоёма. На вершине цепи последний ковш опрокидывается, и его содержимое помещается на конвейер или лоток, который перенаправляет его на грунтоотвозную баржу или на берег. Ограничение по объему ковшей варьируется от 0,05 до 1 кубического метра, а их размер зависит от типа грунта и мощности двигателя. Многочерпаковые земснаряды могут функционировать на глубинах до 20 метров.
Штанговый. Данный тип является одноковшовым, часто располагается на понтоне и применяется для работ на мелководье. Его универсальность позволяет использовать штанговые земснаряды практически при любых работах. После извлечения грунта с дна с помощью ковша он, как правило, отправляется на берег. Штанговый земснаряд прекрасно подходит для качественной очистки водоёмов, а также их расширения как в глубину, так и внутрь.
Грейферный. Обычно базируется на принципе плавкрана, где основной инструмент — это грефер, состоящий из двух ковшей. Грейфер прочно прикреплён к стреле крана с помощью стальных тросов. Эти земснаряды идеальны для выполнения любых дноуглубительных работ, но чаще всего используются для извлечения нерудных материалов. После извлечения грейфером воды и песка, все это помещается на баржу.








